
Проанализировав внешний облик и планировки реабилитационных центров, имеющих различные объемно-пространственные решения, выделен ряд выводов. Во-первых, постройки в виде единого здания имеют большую популярность — их количество в мире выше, чем у комплексов из нескольких сооружений. Тем не менее, оба типа комплексов имеет преимущества. Здания, выполненные в одном объеме, легче интегрировать в городскую среду. Комплексы из нескольких построек имеют большую вариативность зонирования, а также чаще располагаются в природных условиях. Во-вторых, несмотря на то, что сама концепция реабилитационных центров появилась лишь в конце 90-х годов ХХ века, заметно стремительное изменение тенденций их проектирования. Так, в последние несколько лет стали актуальны масштабные, многопрофильные и высокотехнологичные постройки.
Также важно отметить, что был выделен ряд общих особенностей архитектуры и дизайна, который прослеживается в центрах со всеми видами объемных решений. Сбалансированные планировки центров совмещают в себе пространства различного характера — обязательно наличие открытых общих зон, а также уединенных мест. Природная составляющая играет ключевую роль в реабилитации, поэтому комплексы либо располагаются рядом с парками или лесами, либо имеют особые зеленые зоны. Фасады и интерьеры имеют запоминающийся вид — это приковывает внимание посетителей и располагает их к оздоровлению внутри таких построек. Более того, зачастую внутренний облик зданий имеет уютную, домашнюю атмосферу, которая подсознательно расслабляет пациентов. Также при проектировании уделяется большое внимание количествам солнечного света, проходящего внутрь здания. В дизайне центров используются теплые и насыщенные цвета, также популярен белый. Наиболее распостраненным материалом является дерево различных пород, зачастую имеющее приятную для тактильных ощущений фактуру.
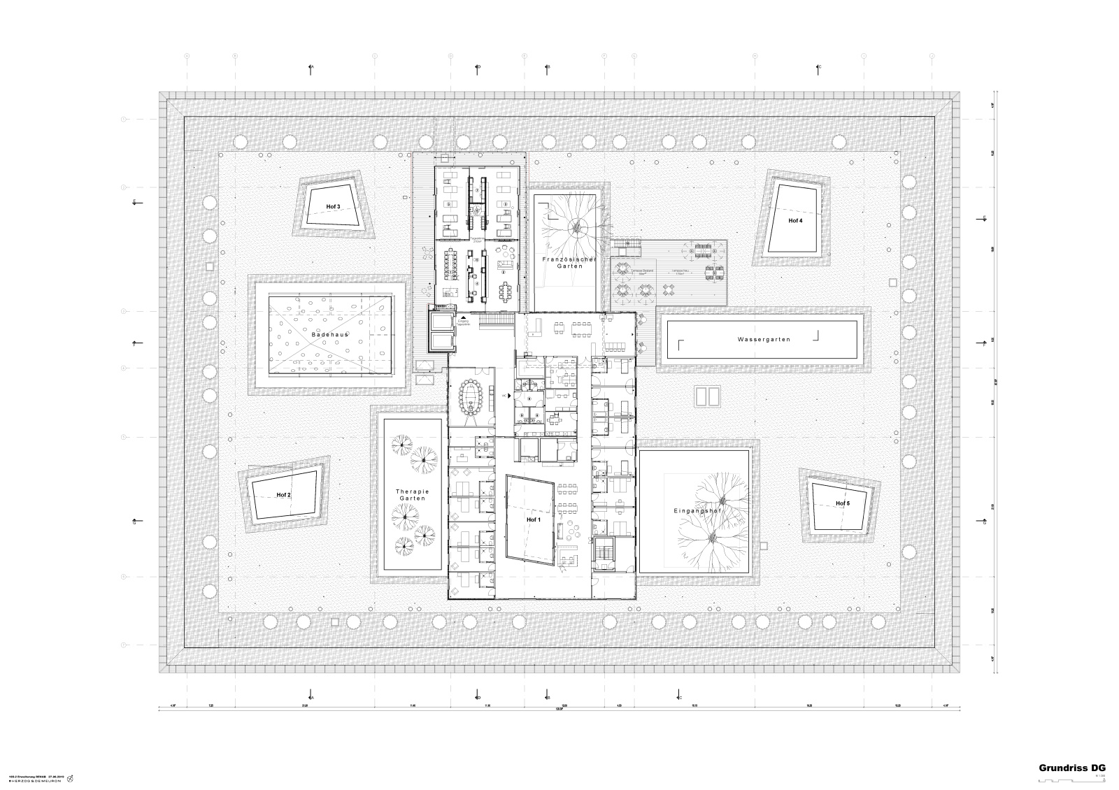
165 REHAB, Clinic for Neurorehabilitation and Paraplegiology // Сайт: https://www.herzogdemeuron.com/ (URL: https://www.herzogdemeuron.com/projects/165-rehab-clinic-for-neurorehabilitation-and-paraplegiology/) Дата обращения: 02.11.2023
Amy Frearson. Maggie’s South West Wales by Kisho Kurokawa and Garbers & James // Сайт: https://www.dezeen.com/ 28.11.2011 (URL: https://www.dezeen.com/2011/11/28/maggie%E2%80%99s-south-west-wales-by-kisho-kurokawa-and-garbers-james/) Дата обращения: 02.11.2023
Ashleigh Davis. Maggie’s Aberdeen by Snohetta // Сайт: https://www.dezeen.com/ 13.09.2013 (URL: https://www.dezeen.com/2013/09/13/maggies-centre-aberdeen-by-snohetta/) Дата обращения: 02.11.2023
Beit-Halochem Rehabilitation Center / Kimmel-Eshkolot Architects // Сайт: https://www.archdaily.com/ (URL: https://www.archdaily.com/126119/beit-halochem-rehabilitation-center-kimmel-eshkolot-architects) Дата обращения: 03.11.2023
Centre For Cancer And Health / NORD Architects // Сайт: https://www.archdaily.com/ (URL: https://www.archdaily.com/430800/centre-for-cancer-and-health-nord-architects) Дата обращения: 05.11.2023
Center for Psychosocial Rehabilitation / Otxotorena Arquitectos // Сайт: https://www.archdaily.com/ (URL: https://www.archdaily.com/512803/center-for-psychosocial-rehabilitation-otxotorena-arquitectos) Дата обращения: 04.11.2023
Children’s Center for Psychiatric Rehabilitation / Sou Fujimoto Architects // Сайт: https://www.archdaily.com/ (URL: https://www.archdaily.com/8028/children%25e2%2580%2599s-center-for-psychiatric-rehabilitation-sou-fujimoto) Дата обращения: 01.11.2023
Coudraie & Les Hetres Homes / FWG Architects Sarl // Сайт: https://www.archdaily.com/ (URL: https://www.archdaily.com/988156/coudraie-and-les-hetres-homes-fwg-architects-sarl) Дата обращения: 01.11.2023
Emilie Chalcraft. Frank Gehry-designed Maggie’s Centre opens in Hong Kong // Сайт: https://www.dezeen.com/ 08.03.2013 (URL: https://www.dezeen.com/2013/03/08/frank-gehry-maggies-centre-hong-kong-opens/) Дата обращения: 05.11.2023
Fitzroy Crossing Renal Hostel / iredale pedersen hook architects // Сайт: https://www.archdaily.com/ (URL: https://www.archdaily.com/882884/fitzroy-crossing-renal-hostel-iredale-pedersen-hook-architects) Дата обращения: 05.11.2023
HOW THE STUDY OF WELLNESS WITHIN HOTELS CAN INFORM GREATER WELL-BEING WITHIN AND BEYOND OUR HOMES. MARIE COUTURIER // URL: (https://interioreducators.co.uk/uploads/submitted-files/145.W_.CSb_.2022.pdf) Дата обращения: 06.11.2023
Keerthi Priya Pamineni. 25 Examples of Rehabilitation centre around the world // Сайт: https://www.re-thinkingthefuture.com/ (URL: https://www.re-thinkingthefuture.com/architectural-styles/a6421-25-examples-of-rehabilitation-centre-around-the-world/3/) Дата обращения: 05.11.2023
Livsrum / Polyform // Сайт: https://www.archdaily.com/ (URL: https://www.archdaily.com/471391/livsrum) Дата обращения: 07.11.2023
Lizzie Fison. dRMM builds Oldham Maggie’s Centre around a courtyard with rippling glass walls // Сайт: https://www.dezeen.com/ 21.06.2017 (URL: https://www.archdaily.com/786370/maggies-cancer-centre-manchester-foster-plus-partners) Дата обращения: 03.11.2023
Maggie’s Leeds Centre / Heatherwick Studio // Сайт: https://www.archdaily.com/ (URL: https://www.archdaily.com/941540/maggies-leeds-centre-heatherwick-studio) Дата обращения: 07.11.2023
Musholm extension / AART Architects // Сайт: https://www.archdaily.com/ (URL: https://www.archdaily.com/776148/musholm-extension-aart-architects) Дата обращения: 02.11.2023
One Taste Holistic / CROX International Co., LTD // Сайт: https://www.archdaily.com/ (URL: https://www.archdaily.com/285073/one-taste-holistic-crox-international) Дата обращения: 07.11.2023
Patient Hotel / 3XN // Сайт: https://www.archdaily.com/ (URL: https://www.archdaily.com/777710/patient-hotel-3xn) Дата обращения: 04.11.2023
Phineas Harper. Spinal Injury Rehabilitation Centre, Asunción, Paraguay, by Gabinete de Arquitectura // Сайт: https://www.architectural-review.com/ (URL: https://www.architectural-review.com/today/spinal-injury-rehabilitation-centre-asuncion-paraguay-by-gabinete-de-arquitectura) Дата обращения: 03.11.2023
Rehabilitation Center Shenzhen // Сайт: https://www.stefanoboeriarchitetti.net/ (URL: https://www.stefanoboeriarchitetti.net/project/shenzhen-rehabilitation-center/) Дата обращения: 02.11.2023
Samuel Medina. The Story of Maggie’s Centres: How 17 Architects Came to Tackle Cancer Care // Сайт: https://www.archdaily.com/ 27.04.2017 (URL: https://www.archdaily.com/498519/the-story-of-maggie-s-centres-how-17-architects-came-to-tackle-cancer-care) Дата обращения: 04.11.2023
Sister Margaret Smith Addictions Treatment Centre / Kuch Stephenson Gibson Malo Architects and Engineer + Montgomery Sisam Architects // Сайт: https://www.archdaily.com/ (URL: https://www.archdaily.com/109414/sister-margaret-smith-addictions-treatment-centre-montgomery-sisam-architects) Дата обращения: 02.11.2023
Stephen Verderber. Innovations in Hospital Architecture / S. Verderber. — New York: Routledge, 2010. — 365 с. Дата обращения: 01.11.2023
WELLBEING PAVILION // Сайт: https://kaunitzyeung.com/ (URL: https://kaunitzyeung.com/project/wellbeing-pavilion/) Дата обращения: 07.11.2023
https://www.architime.ru/specarch/top_10_hospital/1_3.jpg Дата обращения: 01.11.2023
https://www.architime.ru/specarch/top_10_hospital/1_5.jpg Дата обращения: 01.11.2023
https://images.adsttc.com/media/images/534f/379d/c07a/801c/dd00/0049/large_jpg/dundee_exteriorandlandscape2.jpg?1397700504 Дата обращения: 01.11.2023
https://cdnassets.hw.net/e1/32/851e599543c9aa78fba34f0fe036/6bd4fa0b-7f18-4ad8-85dd-864d2c8bbd4d.jpg Дата обращения: 01.11.2023
https://i.pinimg.com/originals/f9/c2/2f/f9c22f8b59d97562888cce9b4a62700b.jpg Дата обращения: 01.11.2023
https://zahner-wordpress-media.s3.amazonaws.com/wp-content/uploads/2020/07/24122609/maggies-center-zip-3.jpg Дата обращения: 01.11.2023
https://assets.website-files.com/5e1cb4473abc5318db7b7c22/60648b097c24213dafa92545_Keith-Hunter-Aug-09-ALB663-Maggies-Dundee-MCDG-0509-37.jpg Дата обращения: 01.11.2023
https://i.pinimg.com/originals/45/07/4f/45074f9e6c0d60efe5a9990b0cdb76ee.jpg Дата обращения: 01.11.2023
https://i.pinimg.com/originals/c3/3e/37/c33e37db2b430a7ac2a30ea8ec0f3737.png Дата обращения: 01.11.2023
https://images.adsttc.com/media/images/5007/49fc/28ba/0d41/4800/1b25/slideshow/stringio.jpg?1361422824 Дата обращения: 01.11.2023
https://images.adsttc.com/media/images/5007/49d7/28ba/0d41/4800/1b20/slideshow/stringio.jpg?1361238635 Дата обращения: 01.11.2023
https://images.adsttc.com/media/images/5007/4a08/28ba/0d41/4800/1b27/slideshow/stringio.jpg?1361238681 Дата обращения: 01.11.2023
https://images.adsttc.com/media/images/5007/49ce/28ba/0d41/4800/1b1f/slideshow/stringio.jpg?1361238627 Дата обращения: 01.11.2023
https://images.adsttc.com/media/images/5007/49ec/28ba/0d41/4800/1b23/slideshow/stringio.jpg?1361238655 Дата обращения: 01.11.2023
https://images.adsttc.com/media/images/5007/49f5/28ba/0d41/4800/1b24/slideshow/stringio.jpg?1361238664 Дата обращения: 01.11.2023
https://images.adsttc.com/media/images/5007/4a01/28ba/0d41/4800/1b26/slideshow/stringio.jpg?1361238675 Дата обращения: 01.11.2023
https://images.adsttc.com/media/images/5007/49e4/28ba/0d41/4800/1b22/slideshow/stringio.jpg?1361238647 Дата обращения: 01.11.2023
https://images.adsttc.com/media/images/5007/4a0d/28ba/0d41/4800/1b28/slideshow/stringio.jpg?1361238687 Дата обращения: 01.11.2023
https://archidom.ru/upload/iblock/b03/b0378dd94400e94069b6ccd74d03e915.jpg Дата обращения: 01.11.2023
https://www.srm.com/media/1285/c-users-668114cw-desktop-images-optimised-for-web-maggies-summary-870x533.jpg Дата обращения: 01.11.2023
https://jackswindell.files.wordpress.com/2016/03/microsoft-word-sir-robert-mcalpine-ltd-maggies-report-nr-2_1_0001.jpg Дата обращения: 01.11.2023
https://cdn.archilovers.com/projects/c_383_c208bb2aa0d64ace9067c1cb7cd32c1c.jpg Дата обращения: 01.11.2023
https://cdn.archilovers.com/projects/c_383_22b53122c5594fa2b8d2d2b5f3f4fcdc.jpg Дата обращения: 01.11.2023
https://www.roberthirschfield.com/wp-content/uploads/2020/07/Maggies-ls-1.jpg Дата обращения: 01.11.2023https://www.roberthirschfield.com/wp-content/uploads/2020/07/Maggies-ls-7.jpg Дата обращения: 01.11.2023
https://www.roberthirschfield.com/wp-content/uploads/2020/07/Maggies-ls-4.jpg Дата обращения: 01.11.2023
https://www.roberthirschfield.com/wp-content/uploads/2020/07/Maggies-ls-8.jpg Дата обращения: 01.11.2023
https://www.roberthirschfield.com/wp-content/uploads/2020/07/Maggies-ls-3.jpg Дата обращения: 01.11.2023
https://images.adsttc.com/media/images/5240/d492/e8e4/4e2e/ad00/002b/slideshow/68_004_Sundhedscenter_037_H.jpg?1379980401 Дата обращения: 01.11.2023
https://images.adsttc.com/media/images/5240/d48e/e8e4/4e00/3d00/0024/slideshow/68_004_Sundhedscenter_040_H.jpg?1379980396 Дата обращения: 01.11.2023
https://images.adsttc.com/media/images/5240/d450/e8e4/4e00/3d00/0023/slideshow/68_004_Sundhedscenter_034_H.jpg?1379980326 Дата обращения: 01.11.2023
https://images.adsttc.com/media/images/5240/d4e7/e8e4/4e2e/ad00/002c/slideshow/68_004_Sundhedscenter_058_H.jpg?1379980477 Дата обращения: 01.11.2023
https://images.adsttc.com/media/images/5240/d563/e8e4/4eb8/d000/0045/slideshow/68_004_Sundhedscenter_102_H.jpg?1379980597 Дата обращения: 01.11.2023
https://images.adsttc.com/media/images/5240/d5fc/e8e4/4eb8/d000/0046/slideshow/68_004_Sundhedscenter_129_H.jpg?1379980753 Дата обращения: 01.11.2023
https://images.adsttc.com/media/images/5240/d63a/e8e4/4e2e/ad00/002f/slideshow/68_004_Sundhedscenter_148_H.jpg?1379980822 Дата обращения: 02.11.2023
https://images.adsttc.com/media/images/5240/d6bb/e8e4/4e2e/ad00/0031/slideshow/68_004_Sundhedscenter_182_H.jpg?1379980942 Дата обращения: 02.11.2023
https://images.adsttc.com/media/images/5240/d44b/e8e4/4e2e/ad00/002a/slideshow/68_004_Sundhedscenter_032_H.jpg?1379980325 Дата обращения: 01.11.2023
https://www.archdaily.com/430800/centre-for-cancer-and-health-nord-architects/5240d4e7e8e44e2ead00002c-centre-for-cancer-and-health-nord-architects-photo Дата обращения: 02.11.2023
https://images.adsttc.com/media/images/5240/d6f0/e8e4/4eb8/d000/0048/slideshow/68_004_Sundhedscenter_185_H.jpg?1379981009 Дата обращения: 01.11.2023
https://images.adsttc.com/media/images/5240/d640/e8e4/4e00/3d00/0028/slideshow/68_004_Sundhedscenter_135_H.jpg?1379980821 Дата обращения: 01.11.2023
https://images.adsttc.com/media/images/5240/d754/e8e4/4e2e/ad00/0034/slideshow/Healthcare_Center_1-floor.jpg?1379981127 Дата обращения: 02.11.2023
https://images.adsttc.com/media/images/5240/d752/e8e4/4eb8/d000/0049/slideshow/Healthcare_Center_0-floor.jpg?1379981124 Дата обращения: 04.11.2023
https://images.adsttc.com/media/images/5240/d766/e8e4/4e2e/ad00/0035/slideshow/Healthcare_Center_East_Elevation.jpg?1379981146 Дата обращения: 04.11.2023
https://images.adsttc.com/media/images/5240/d7a5/e8e4/4e2e/ad00/0039/slideshow/Healthcare_Center_West_Elevation.jpg?1379981212 Дата обращения: 04.11.2023
https://images.adsttc.com/media/images/5240/d79b/e8e4/4e2e/ad00/0038/slideshow/Healthcare_Center_South_Elevation.jpg?1379981199 Дата обращения: 01.11.2023
https://images.adsttc.com/media/images/5240/d773/e8e4/4e2e/ad00/0036/slideshow/Healthcare_Center_North_Elevation.jpg?1379981159 Дата обращения: 05.11.2023
https://images.adsttc.com/media/images/5085/fb22/28ba/0d55/ab00/0029/slideshow/DSC_5052.jpg?1375460378 Дата обращения: 05.11.2023
https://images.adsttc.com/media/images/5085/fadb/28ba/0d55/a200/0024/slideshow/DSC_4765.jpg?1375460341 Дата обращения: 05.11.2023
https://images.adsttc.com/media/images/5085/facf/28ba/0d55/ab00/0025/slideshow/DSC_4808.jpg?1375460329 Дата обращения: 05.11.2023
https://images.adsttc.com/media/images/5085/fad9/28ba/0d55/ae00/002d/slideshow/DSC_4829.jpg?1375460338 Дата обращения: 05.11.2023
https://images.adsttc.com/media/images/5085/fb16/28ba/0d55/ab00/0028/slideshow/DSC_4997.jpg?1375460372 Дата обращения: 05.11.2023
https://images.adsttc.com/media/images/5257/5611/e8e4/4ecb/1700/07d3/slideshow/maggies_19020721607.jpg?1381455288 Дата обращения: 03.11.2023
https://images.adsttc.com/media/images/5257/5888/e8e4/4ecb/1700/07d7/slideshow/Portada.jpg?1381455942 Дата обращения: 01.11.2023
https://images.adsttc.com/media/images/5257/5666/e8e4/4e67/bf00/07c0/slideshow/maggies_19020726392.jpg?1381455406 Дата обращения: 03.11.2023
https://www.archdaily.com/437008/maggies-cancer-caring-center-snohetta/52575802e8e44eff0200083d-maggies-cancer-caring-center-snohetta-photo Дата обращения: 03.11.2023
https://images.adsttc.com/media/images/5257/5789/e8e4/4e67/bf00/07c2/slideshow/maggies_19021982321.jpg?1381455703 Дата обращения: 03.11.2023
https://images.adsttc.com/media/images/5257/56c6/e8e4/4ecb/1700/07d4/slideshow/maggies_19020771698_(1).jpg? 1381455504 Дата обращения: 03.11.2023
https://images.adsttc.com/media/images/5257/5839/e8e4/4ecb/1700/07d6/slideshow/maggies_19020811763.jpg?1381455823 Дата обращения: 03.11.2023
https://images.adsttc.com/media/images/5257/5c31/e8e4/4ecb/1700/07d9/slideshow/section_(2).jpg? 1381456937 Дата обращения: 03.11.2023
https://images.adsttc.com/media/images/5257/5c32/e8e4/4eff/0200/083f/slideshow/section_(1).jpg? 1381456935 Дата обращения: 01.11.2023
https://images.adsttc.com/media/images/5257/5c23/e8e4/4ecb/1700/07d8/slideshow/first.jpg?1381456917 Дата обращения: 01.11.2023
https://images.adsttc.com/media/images/5257/5c25/e8e4/4eff/0200/083e/slideshow/second.jpg?1381456917 Дата обращения: 01.11.2023
https://static.dezeen.com/uploads/2013/03/dezeen_Maggies-Hong-Kong-by-Frank-Gehry_ss_1.jpg Дата обращения: 01.11.2023
https://images.ctfassets.net/7mbidstwva6z/1beBVY1lhk22NGRwenXrGj/d2a4d3071fb957f0b8ff90e8879b6c55/maggies_hong_kong_2.jpg?w=1024&h=702&fl=progressive&q=50&fm=jpg Дата обращения: 04.11.2023
https://rlp.asia/wp-content/uploads/2022/02/3711_over_4684.jpg Дата обращения: 04.11.2023
https://www.prc-magazine.com/wp-content/uploads/2013/11/Maggies-Cancer-Caring-Centre-4.jpg Дата обращения: 04.11.2023
https://images.adsttc.com/media/images/538e/86f0/c07a/805c/ea00/01e3/slideshow/e9.jpg?1401849535 Дата обращения: 04.11.2023
https://images.adsttc.com/media/images/538e/85ef/c07a/805c/ea00/01e0/slideshow/e1.jpg?1401849271 Дата обращения: 04.11.2023
https://images.adsttc.com/media/images/538e/874a/c07a/803d/f400/01ca/slideshow/i2.jpg?1401849601 Дата обращения: 04.11.2023
https://images.adsttc.com/media/images/538e/8736/c07a/805c/ea00/01e4/slideshow/i1.jpg?1401849600 Дата обращения: 04.11.2023
https://images.adsttc.com/media/images/538e/86be/c07a/803d/f400/01c8/slideshow/e8.jpg?1401849479 Дата обращения: 04.11.2023
https://images.adsttc.com/media/images/538e/863d/c07a/803d/f400/01c6/slideshow/e3.jpg?1401849340 Дата обращения: 04.11.2023
https://images.adsttc.com/media/images/538e/86b4/c07a/805c/ea00/01e2/slideshow/e7.jpg?1401849468 Дата обращения: 04.11.2023
https://images.adsttc.com/media/images/538e/8673/c07a/8056/9e00/020c/slideshow/e5.jpg?1401849406 Дата обращения: 04.11.2023
https://images.adsttc.com/media/images/538e/8681/c07a/803d/f400/01c7/slideshow/e6.jpg?1401849421 Дата обращения: 04.11.2023
https://images.adsttc.com/media/images/538e/897c/c07a/8056/9e00/020f/slideshow/ground.jpg?1401850220 Дата обращения: 01.11.2023
https://images.adsttc.com/media/images/538e/898d/c07a/8056/9e00/0210/slideshow/section___elevation_(2).jpg? 1401850237 Дата обращения: 01.11.2023
https://images.adsttc.com/media/images/5653/aa59/e58e/ce15/3300/0024/slideshow/07_084_Patient_Hotel_018_L.jpg?1448323660 Дата обращения: 01.11.2023
https://images.adsttc.com/media/images/5653/ab2a/e58e/ce15/3300/002a/slideshow/07_084_Patient_Hotel_062_L.jpg?1448323868 Дата обращения: 03.11.2023
https://images.adsttc.com/media/images/5653/aa8e/e58e/ceb2/5f00/002f/slideshow/07_084_Patient_Hotel_032_L.jpg?1448323715 Дата обращения: 03.11.2023https://images.adsttc.com/media/images/5653/aacb/e58e/ce15/3300/0028/slideshow/07_084_Patient_Hotel_046_L.jpg?1448323774 Дата обращения: 03.11.2023
https://images.adsttc.com/media/images/5653/aa80/e58e/ce15/3300/0026/slideshow/07_084_Patient_Hotel_030_L.jpg?1448323699 Дата обращения: 03.11.2023
https://images.adsttc.com/media/images/5653/abbc/e58e/ce15/3300/002e/slideshow/07_084_Patient_Hotel_080_L.jpg?1448324016 Дата обращения: 03.11.2023
https://www.archdaily.com/777710/patient-hotel-3xn/5653aacbe58ece1533000028-patient-hotel-3xn-photo Дата обращения: 03.11.2023
https://images.adsttc.com/media/images/5653/abdd/e58e/ce15/3300/0030/slideshow/07_084_Patient_Hotel_085_L.jpg?1448324052 Дата обращения: 03.11.2023
https://images.adsttc.com/media/images/5653/ac81/e58e/ceb2/5f00/003c/slideshow/07_084_Patient_Hotel_115_L.jpg?1448324213 Дата обращения: 03.11.2023
https://images.adsttc.com/media/images/5653/ab7a/e58e/ceb2/5f00/0034/slideshow/07_084_Patient_Hotel_076_L.jpg?1448323951 Дата обращения: 02.11.2023
https://images.adsttc.com/media/images/5653/ace3/e58e/ceb2/5f00/003f/slideshow/floor_(1).jpg? 1448324312 Дата обращения: 02.11.2023
https://images.adsttc.com/media/images/5653/acf5/e58e/ceb2/5f00/0040/slideshow/floor_(3).jpg? 1448324329 Дата обращения: 02.11.2023
https://images.adsttc.com/media/images/5653/acd4/e58e/ce15/3300/0037/slideshow/floor_(2).jpg? 1448324296 Дата обращения: 02.11.2023
https://images.adsttc.com/media/images/5653/ad04/e58e/ce15/3300/0038/slideshow/floor_(4).jpg? 1448324344 Дата обращения: 02.11.2023
https://images.adsttc.com/media/images/5720/b90d/e58e/ce0c/3500/0005/slideshow/2145_FP581567_indesign.jpg?1461762307 Дата обращения: 01.11.2023
https://images.adsttc.com/media/images/5977/546f/b22e/38d0/7f00/03fe/slideshow/2145_FP591479.jpg?1500992589 Дата обращения: 01.11.2023
https://images.adsttc.com/media/images/5977/5423/b22e/38d0/7f00/03fd/slideshow/2145_FP591477.jpg?1500992519 Дата обращения: 01.11.2023
https://images.adsttc.com/media/images/5720/b96e/e58e/ce0c/3500/0008/slideshow/2145_FP581592_indesign.jpg?1461762402 Дата обращения: 01.11.2023
https://images.adsttc.com/media/images/5977/5448/b22e/38c1/b800/07e9/slideshow/2145_FP591478.jpg?1500992550 Дата обращения: 01.11.2023
https://images.adsttc.com/media/images/5977/53b3/b22e/38c1/b800/07e6/slideshow/2145_FP581714.jpg?1500992401 Дата обращения: 01.11.2023
https://images.adsttc.com/media/images/5720/b947/e58e/cef7/4700/0003/slideshow/2145_FP581500_indesign.jpg?1461762360 Дата обращения: 01.11.2023
https://www.archdaily.com/786370/maggies-cancer-centre-manchester-foster-plus-partners/597753b3b22e38c1b80007e6-maggies-cancer-centre-manchester-foster-plus-partners-photo Дата обращения: 01.11.2023
https://images.adsttc.com/media/images/5720/b984/e58e/ce0c/3500/0009/slideshow/2145_FP581593_indesign.jpg?1461762421 Дата обращения: 02.11.2023
https://www.archdaily.com/786370/maggies-cancer-centre-manchester-foster-plus-partners/597753b3b22e38c1b80007e6-maggies-cancer-centre-manchester-foster-plus-partners-photo Дата обращения: 01.11.2023
https://images.adsttc.com/media/images/5720/b984/e58e/ce0c/3500/0009/slideshow/2145_FP581593_indesign.jpg?1461762421 Дата обращения: 02.11.2023
https://images.adsttc.com/media/images/5977/5225/b22e/38c1/b800/07e1/slideshow/2145_FP581590.jpg?1500992002 Дата обращения: 02.11.2023
https://images.adsttc.com/media/images/5977/4d3e/b22e/38d0/7f00/03e8/slideshow/2145_FP581552_medium.jpg?1500990778 Дата обращения: 02.11.2023
https://images.adsttc.com/media/images/5977/4d4d/b22e/38c1/b800/07bf/slideshow/2145_FP581554_medium.jpg?1500990793 Дата обращения: 02.11.2023
https://images.adsttc.com/media/images/5977/4d85/b22e/38c1/b800/07c4/slideshow/2145_FP581561_medium.jpg?1500990849 Дата обращения: 02.11.2023
https://images.adsttc.com/media/images/5955/edf5/b22e/38e5/e600/014d/slideshow/MaggiesOldham_dRMM_1_AlexdeRijke.jpg?1498803695 Дата обращения: 02.11.2023
https://images.adsttc.com/media/images/5955/ee19/b22e/38e5/e600/014f/slideshow/MaggiesOldham_dRMM_5_AlexdeRijke.jpg?1498803730 Дата обращения: 02.11.2023
https://images.adsttc.com/media/images/5955/ee02/b22e/38e5/e600/014e/slideshow/MaggiesOldham_dRMM_3_AlexdeRijke.jpg?1498803708 Дата обращения: 03.11.2023
https://images.adsttc.com/media/images/5955/ee3d/b22e/3853/6800/008a/slideshow/MaggiesOldham_dRMM_8_AlexdeRijke.jpg?1498803766 Дата обращения: 03.11.2023
https://images.adsttc.com/media/images/5955/ee0d/b22e/3853/6800/0089/slideshow/MaggiesOldham_dRMM_4_AlexdeRijke.jpg?1498803718 Дата обращения: 03.11.2023
https://images.adsttc.com/media/images/5955/ee7b/b22e/3853/6800/008c/slideshow/MaggiesOldham_dRMM_12_AlexdeRijke.jpg?1498803804 Дата обращения: 03.11.2023
https://images.adsttc.com/media/images/5955/f0b5/b22e/38e5/e600/015b/slideshow/MaggiesOldham_dRMM_29_JasminSohi.jpg?1498804380 Дата обращения: 03.11.2023
https://images.adsttc.com/media/images/5955/f663/b22e/3853/6800/00b0/slideshow/MaggiesOldham_dRMM_11_TonyBarwell.jpg?1498805830 Дата обращения: 03.11.2023
https://images.adsttc.com/media/images/5955/ee87/b22e/38e5/e600/0151/slideshow/MaggiesOldham_dRMM_13_AlexdeRijke.jpg?1498803840 Дата обращения: 01.11.2023
https://images.adsttc.com/media/images/5955/eedb/b22e/38e5/e600/0153/slideshow/MaggiesOldham_dRMM_6_JasminSohi.jpg?1498803906 Дата обращения: 01.11.2023
https://images.adsttc.com/media/images/5955/eeb1/b22e/38e5/e600/0152/slideshow/MaggiesOldham_dRMM_2_JasminSohi.jpg?1498803863 Дата обращения: 01.11.2023
https://images.adsttc.com/media/images/5955/f041/b22e/38e5/e600/015a/slideshow/MaggiesOldham_dRMM_Plan.jpg?1498804249 Дата обращения: 01.11.2023
https://images.adsttc.com/media/images/5955/efca/b22e/3853/6800/0093/slideshow/MaggiesOldham_dRMM_LongSection.jpg?1498804133 Дата обращения: 05.11.2023
https://images.adsttc.com/media/images/5955/ef94/b22e/3853/6800/0092/slideshow/MaggiesOldham_dRMM_CrossSection.jpg?1498804079 Дата обращения: 05.11.2023
https://www.stefanoboeriarchitetti.net/wp-content/uploads/2023/01/03%C2%A9Stefano-Boeri-Architetti-China_Shenzhen-Rehabilitation-Center_bird-view-scaled.jpg Дата обращения: 05.11.2023
https://lifeglobe.net/x/entry/10804/1.jpg Дата обращения: 05.11.2023
https://www.stefanoboeriarchitetti.net/wp-content/uploads/2023/01/04-%C2%A9Stefano-Boeri-Architetti-China-_Shenzhen-Rehabilitation-Center_South-Facade-scaled.jpg Дата обращения: 05.11.2023
https://www.stefanoboeriarchitetti.net/wp-content/uploads/2023/01/02-%C2%A9Stefano-Boeri-Architetti-China_Shenzhen-Rehabilitation-Center-scaled.jpg Дата обращения: 05.11.2023
https://kaunitzyeung.com/wp-content/uploads/KaunitzYeung_Orange_AMS_Rehab_001739-_PHOTOSHOP-OUT-WHITE-DECALS-min.jpg Дата обращения: 05.11.2023
https://kaunitzyeung.com/wp-content/uploads/KaunitzYeung_Orange_AMS_Rehab_000035-min.jpg Дата обращения: 01.11.2023
https://kaunitzyeung.com/wp-content/uploads/KaunitzYeung_Orange_AMS_Rehab_000846-min.jpg Дата обращения: 01.11.2023
https://kaunitzyeung.com/wp-content/uploads/KaunitzYeung_Orange_AMS_Rehab_001739-_PHOTOSHOP-OUT-WHITE-DECALS-min.jpg Дата обращения: 01.11.2023
https://kaunitzyeung.com/wp-content/uploads/KaunitzYeung_Orange_AMS_Rehab_000042-min.jpg Дата обращения: 03.11.2023
https://kaunitzyeung.com/wp-content/uploads/KaunitzYeung_Orange_AMS_Rehab_001747-min.jpg Дата обращения: 03.11.2023
https://picturepark.cdn.herzogdemeuron.com/v/MnYeBMAK/ Дата обращения: 03.11.2023
https://picturepark.cdn.herzogdemeuron.com/v/Wtq0iDQM/ Дата обращения: 03.11.2023
https://picturepark.cdn.herzogdemeuron.com/v/vLkET5PI/ Дата обращения: 03.11.2023
https://www.herzogdemeuron.com/content/uploads/2023/06/165_CO_0105_031_HdM.jpg Дата обращения: 0311.2023
https://picturepark.cdn.herzogdemeuron.com/v/Se0mg4fo/ Дата обращения: 03.11.2023
https://www.herzogdemeuron.com/content/uploads/2023/06/165_CP_160916_0899_KD_9174_031A_H.tif.jpg Дата обращения: 01.11.2023
https://picturepark.cdn.herzogdemeuron.com/v/uLWDYRok/ Дата обращения: 03.11.2023
https://picturepark.cdn.herzogdemeuron.com/v/BKkTQ8Ss/ Дата обращения: 01.11.2023
https://picturepark.cdn.herzogdemeuron.com/v/v4DSvcCx/ Дата обращения: 01.11.2023
https://picturepark.cdn.herzogdemeuron.com/v/yqDgNj43/ Дата обращения: 01.11.2023
https://picturepark.cdn.herzogdemeuron.com/v/0kMyi7zP/ Дата обращения: 02.11.2023
https://picturepark.cdn.herzogdemeuron.com/v/wxw7yoLf/ Дата обращения: 02.11.2023
https://picturepark.cdn.herzogdemeuron.com/v/BKtaOj7d/ Дата обращения: 02.11.2023
https://www.herzogdemeuron.com/content/uploads/2023/06/165_DR_A1-L_1-200.tif.jpg Дата обращения: 02.11.2023
https://www.herzogdemeuron.com/content/uploads/2023/06/165_DT_010301_Nr538C_A1-L.tif.jpg Дата обращения: 02.11.2023
https://www.herzogdemeuron.com/content/uploads/2023/06/165-2_CI_1809_Tagesklinik-Iso_exploded.jpg Дата обращения: 01.11.2023
https://images.adsttc.com/media/images/5010/0db2/28ba/0d42/2200/0768/slideshow/stringio.jpg?1414470157 Дата обращения: 01.11.2023
https://images.adsttc.com/media/images/5010/0dad/28ba/0d42/2200/0767/slideshow/stringio.jpg?1414470166 Дата обращения: 01.11.2023
https://images.adsttc.com/media/images/5010/0db7/28ba/0d42/2200/0769/slideshow/stringio.jpg?1414470175 Дата обращения: 02.11.2023
https://images.adsttc.com/media/images/5010/0d9c/28ba/0d42/2200/0764/slideshow/stringio.jpg?1414470161 Дата обращения: 02.11.2023
https://images.adsttc.com/media/images/5010/0da6/28ba/0d42/2200/0766/slideshow/stringio.jpg?1414470169 Дата обращения: 02.11.2023
https://images.adsttc.com/media/images/55f1/163c/e58e/ce3c/0600/00fc/slideshow/10_Telet%C3%B3n_-%C2%A9_Federico_Cairoli(low).jpg? 1441863221 Дата обращения: 02.11.2023
https://images.adsttc.com/media/images/55f1/160c/e58e/ce3c/0600/00fb/slideshow/09_Teleto%CC%81n_-%C2%A9_Federico_Cairoli(low).jpg? 1441863174 Дата обращения: 02.11.2023
https://images.adsttc.com/media/images/55f1/16d9/e58e/ce3c/0600/0103/slideshow/DSC06997.jpg?1441863379 Дата обращения: 02.11.2023
https://cdn.ca.emap.com/wp-content/uploads/sites/12/2013/08/SS_4_462821762.jpg Дата обращения: 01.11.2023
https://cdn.ca.emap.com/wp-content/uploads/sites/12/2013/08/SS_2_482368525.jpg Дата обращения: 01.11.2023
https://cdn.ca.emap.com/wp-content/uploads/sites/12/2013/08/INDEX_2493502452.jpg Дата обращения: 01.11.2023
https://urbannext.net/wp-content/uploads/2016/05/SBEN_TELETON_14.jpg Дата обращения: 01.11.2023
https://images.adsttc.com/media/images/55f1/173e/e58e/ce3c/0600/0104/slideshow/planta_general.jpg?1441863476 Дата обращения: 01.11.2023
https://images.adsttc.com/media/images/55f1/174b/e58e/ce9c/4e00/00f5/slideshow/planta_crit.jpg?1441863489 Дата обращения: 03.11.2023
https://images.adsttc.com/media/images/5013/f2a8/28ba/0d3b/4500/0786/slideshow/stringio.jpg?1414043071 Дата обращения: 03.11.2023
https://images.adsttc.com/media/images/5013/f2e3/28ba/0d3b/4500/0796/slideshow/stringio.jpg?1414043104 Дата обращения: 03.11.2023
https://images.adsttc.com/media/images/5013/f2dd/28ba/0d3b/4500/0794/slideshow/stringio.jpg?1414043102 Дата обращения: 03.11.2023
https://images.adsttc.com/media/images/5013/f2c1/28ba/0d3b/4500/078d/slideshow/stringio.jpg?1414043090 Дата обращения: 03.11.2023
https://images.adsttc.com/media/images/5013/f2c8/28ba/0d3b/4500/078f/slideshow/stringio.jpg?1414043094 Дата обращения: 03.11.2023
https://images.adsttc.com/media/images/5013/f2be/28ba/0d3b/4500/078c/slideshow/stringio.jpg?1414043075 Дата обращения: 03.11.2023
https://images.adsttc.com/media/images/5013/f2d0/28ba/0d3b/4500/0791/slideshow/stringio.jpg?1414043078 Дата обращения: 03.11.2023
https://images.adsttc.com/media/images/5013/f2f2/28ba/0d3b/4500/079b/slideshow/stringio.jpg?1414043115 Дата обращения: 03.11.2023
https://images.adsttc.com/media/images/5013/f2ef/28ba/0d3b/4500/079a/slideshow/stringio.jpg?1414043112 Дата обращения: 03.11.2023
https://images.adsttc.com/media/images/5013/f2e7/28ba/0d3b/4500/0797/slideshow/stringio.jpg?1414043107 Дата обращения: 03.11.2023
https://images.adsttc.com/media/images/5013/f2e9/28ba/0d3b/4500/0798/slideshow/stringio.jpg?1414043109 Дата обращения: 03.11.2023
https://images.adsttc.com/media/images/5013/f2ed/28ba/0d3b/4500/0799/slideshow/stringio.jpg?1414043110 Дата обращения: 03.11.2023
https://images.adsttc.com/media/images/52e6/f82c/e8e4/4e99/0600/0233/slideshow/POLYFORMCCExterior4.jpg?1390868503 Дата обращения: 01.11.2023
https://images.adsttc.com/media/images/52e6/f833/e8e4/4e08/1d00/022f/slideshow/POLYFORMCCExteriorNight.jpg?1390868512 Дата обращения: 01.11.2023
https://images.adsttc.com/media/images/52e6/f869/e8e4/4e08/1d00/0231/slideshow/POLYFORMCCInterior3.jpg?1390868566 Дата обращения: 01.11.2023
https://images.adsttc.com/media/images/52e6/f7f1/e8e4/4e08/1d00/022e/slideshow/POLYFORMCCExterior1.jpg?1390868443 Дата обращения: 01.11.2023
https://images.adsttc.com/media/images/52e6/f885/e8e4/4e1f/4000/0232/slideshow/floor.jpg?1390868606 Дата обращения: 01.11.2023
https://images.adsttc.com/media/images/52e6/f890/e8e4/4e08/1d00/0232/slideshow/ground.jpg?1390868617 Дата обращения: 01.11.2023
https://images.adsttc.com/media/images/52e6/f885/e8e4/4e99/0600/0235/slideshow/elevation.jpg?1390868603 Дата обращения: 01.11.2023
https://images.adsttc.com/media/images/5630/18aa/e58e/ce22/ae00/0441/slideshow/portada_AART_architects_Musholm_02.jpg?1445992598 Дата обращения: 01.11.2023
https://images.adsttc.com/media/images/5630/1735/e58e/ce22/ae00/043c/slideshow/AART_architects_Musholm_03.jpg?1445992225 Дата обращения: 01.11.2023
https://images.adsttc.com/media/images/5630/1748/e58e/ceb4/c400/044f/slideshow/AART_architects_Musholm_08.jpg?1445992248 Дата обращения: 01.11.2023
https://images.adsttc.com/media/images/5630/1702/e58e/ce22/ae00/043b/slideshow/AART_architects_Musholm_09.jpg?1445992170 Дата обращения: 01.11.2023
https://images.adsttc.com/media/images/5630/1890/e58e/ceb4/c400/0458/slideshow/Musholm_plan_01_multi-purpose_sports_hall_AART_architects.jpg?1445992576 Дата обращения: 01.11.2023
https://images.adsttc.com/media/images/5630/18bf/e58e/ceb4/c400/0459/slideshow/Musholm_plan_02_multi-purpose_sports_hall_AART_architects.jpg?1445992624 Дата обращения: 01.11.2023
https://images.adsttc.com/media/images/5630/17b2/e58e/ceb4/c400/0452/slideshow/AART_architects_Musholm_13.jpg?1445992352 Дата обращения: 01.11.2023
https://images.adsttc.com/media/images/5630/17cd/e58e/ce22/ae00/043e/slideshow/AART_architects_Musholm_14.jpg?1445992372 Дата обращения: 01.11.2023
https://images.adsttc.com/media/images/5630/184c/e58e/ceb4/c400/0456/slideshow/AART_architects_Musholm_10.jpg?1445992505 Дата обращения: 02.11.2023
https://images.adsttc.com/media/images/5630/187c/e58e/ce22/ae00/0440/slideshow/Musholm_plan_01_holiday_homes_AART_architects.jpg?1445992556 Дата обращения: 02.11.2023
https://www.archdaily.com/882884/fitzroy-crossing-renal-hostel-iredale-pedersen-hook-architects/59fc4929b22e38c903000137-fitzroy-crossing-renal-hostel-iredale-pedersen-hook-architects-photo Дата обращения: 02.11.2023
https://images.adsttc.com/media/images/59fc/49be/b22e/38c9/0300/013b/slideshow/14_170518_Fitzroy_Crossing_Renal_0103.jpg?1509706167 Дата обращения: 02.11.2023
https://images.adsttc.com/media/images/59fc/4a38/b22e/38ab/2500/0223/slideshow/24_170518_Fitzroy_Crossing_Renal_0343.jpg?1509706288 Дата обращения: 02.11.2023
https://images.adsttc.com/media/images/59fc/4a1f/b22e/38c9/0300/013f/slideshow/22_170518_Fitzroy_Crossing_Renal_0301.jpg?1509706262 Дата обращения: 02.11.2023
https://www.archdaily.com/882884/fitzroy-crossing-renal-hostel-iredale-pedersen-hook-architects/59fc4a5cb22e38c903000142-fitzroy-crossing-renal-hostel-iredale-pedersen-hook-architects-photo Дата обращения: 02.11.2023
https://images.adsttc.com/media/images/59fc/4939/b22e/38c9/0300/0138/slideshow/7_170518_Fitzroy_Crossing_Renal_1440_1443.jpg?1509706035 Дата обращения: 02.11.2023
https://images.adsttc.com/media/images/59fc/4a5c/b22e/38c9/0300/0142/slideshow/27_170518_Fitzroy_Crossing_Renal_0924.jpg?1509706324 Дата обращения: 02.11.2023
https://images.adsttc.com/media/images/59fc/4a2d/b22e/38c9/0300/0140/slideshow/23_170518_Fitzroy_Crossing_Renal_0854.jpg?1509706277 Дата обращения: 02.11.2023
https://images.adsttc.com/media/images/59fc/4c35/b22e/38c9/0300/0145/slideshow/SITE_PLAN_REDUCED0001.jpg?1509706801 Дата обращения: 02.11.2023
https://images.adsttc.com/media/images/5ee2/3035/b357/65c6/d800/033d/slideshow/Heatherwick_Studio_Maggies_Leeds_%C2%A9Hufton_Crow_015.jpg?1591881732 Дата обращения: 02.11.2023
https://images.adsttc.com/media/images/5ee2/3113/b357/65c6/d800/033f/slideshow/Heatherwick_Studio_Maggies_Leeds_%C2%A9Hufton_Crow_013.jpg?1591881958 Дата обращения: 02.11.2023
https://images.adsttc.com/media/images/5ee2/30a9/b357/65c6/d800/033e/slideshow/Heatherwick_Studio_Maggies_Leeds_%C2%A9Hufton_Crow_019.jpg?1591881833 Дата обращения: 01.11.2023
https://images.adsttc.com/media/images/5ee2/2fff/b357/65c6/d800/033c/slideshow/Heatherwick_Studio_Maggies_Leeds_%C2%A9Hufton_Crow_002.jpg?1591881670 Дата обращения: 01.11.2023
https://images.adsttc.com/media/images/5ee2/30e0/b357/655b/9e00/0220/slideshow/Heatherwick_Studio_Maggies_Leeds_%C2%A9Hufton_Crow_005.jpg?1591881903 Дата обращения: 01.11.2023
https://images.adsttc.com/media/images/5ee2/3062/b357/655b/9e00/021f/slideshow/Heatherwick_Studio_Maggies_Leeds_%C2%A9Hufton_Crow_020.jpg?1591881786 Дата обращения: 01.11.2023
https://images.adsttc.com/media/images/5ee2/318e/b357/655b/9e00/0222/slideshow/Heatherwick_Studio_Maggies_Leeds_%C2%A9Hufton_Crow_017.jpg?1591882064 Дата обращения: 01.11.2023
https://images.adsttc.com/media/images/5ee2/3253/b357/655b/9e00/0226/slideshow/2._Maggie’s_Leeds_Ground_Floor_Plan_Heatherwick_Studio.jpg? 1591882311 Дата обращения: 01.11.2023
https://images.adsttc.com/media/images/5ee2/3265/b357/65c6/d800/0346/slideshow/3._Maggie’s_Leeds_Mezzanine_Plan_Heatherwick_Studio.jpg? 1591882328 Дата обращения: 01.11.2023
https://images.adsttc.com/media/images/5ee2/329b/b357/655b/9e00/0229/slideshow/6._Maggie’s_Leeds_East_Elevation_Heatherwick_Studio.jpg? 1591882386 Дата обращения: 01.11.2023
https://images.adsttc.com/media/images/5ee2/328f/b357/65c6/d800/0347/slideshow/5._Maggie’s_Leeds_South_Elevation_Heatherwick_Studio.jpg? 1591882373 Дата обращения: 01.11.2023
https://images.adsttc.com/media/images/5ee2/32b9/b357/655b/9e00/022b/slideshow/8._Maggie’s_Leeds_Long_Section_Heatherwick_Studio.jpg? 1591882416 Дата обращения: 01.11.2023
https://images.adsttc.com/media/images/5ee2/32aa/b357/655b/9e00/022a/slideshow/7._Maggie’s_Leeds_Cross_Section_Heatherwick_Studio.jpg? 1591882400 Дата обращения: 01.11.2023
https://images.adsttc.com/media/images/5ee2/32d8/b357/65c6/d800/0348/slideshow/9._Maggie’s_Leeds_Timber_Structure_Heatherwick_Studio.jpg? 1591882427 Дата обращения: 01.11.2023
https://images.adsttc.com/media/images/630e/28b3/ae0c/1d01/6e5d/1e6a/slideshow/coudraie-and-les-hetres-fwg-architects-sarl_12.jpg?1661872372 Дата обращения: 01.11.2023
https://images.adsttc.com/media/images/630e/28b2/3f56/0101/6e05/188b/slideshow/coudraie-and-les-hetres-fwg-architects-sarl_10.jpg?1661872324 Дата обращения: 01.11.2023
https://images.adsttc.com/media/images/630e/28b2/3f56/0101/6e05/188d/slideshow/coudraie-and-les-hetres-fwg-architects-sarl_13.jpg?1661872337 Дата обращения: 01.11.2023
https://images.adsttc.com/media/images/630e/28b3/3f56/0101/8505/184f/slideshow/coudraie-and-les-hetres-fwg-architects-sarl_9.jpg?1661872375 Дата обращения: 02.11.2023
https://images.adsttc.com/media/images/630e/28b2/ae0c/1d01/6e5d/1e69/slideshow/coudraie-and-les-hetres-fwg-architects-sarl_8.jpg?1661872322 Дата обращения: 02.11.2023
https://images.adsttc.com/media/images/630e/28b2/ae0c/1d01/855d/1e30/slideshow/coudraie-and-les-hetres-fwg-architects-sarl_2.jpg?1661872351 Дата обращения: 02.11.2023
https://images.adsttc.com/media/images/630e/28b4/3f56/0101/6e05/1891/slideshow/coudraie-and-les-hetres-fwg-architects-sarl_1.jpg?1661872423 Дата обращения: 02.11.2023
https://images.adsttc.com/media/images/630e/28b1/3f56/0101/6e05/188a/slideshow/coudraie-and-les-hetres-fwg-architects-sarl_6.jpg?1661872334 Дата обращения: 02.11.2023
https://images.adsttc.com/media/images/630e/28b2/3f56/0101/6e05/188c/slideshow/coudraie-and-les-hetres-fwg-architects-sarl_16.jpg?1661872337 Дата обращения: 02.11.2023
https://images.adsttc.com/media/images/630e/281f/ae0c/1d02/335d/1e30/slideshow/02-coudraie-ground-floor-2.jpg?1661872176 Дата обращения: 02.11.2023
https://images.adsttc.com/media/images/630e/2820/3f56/0101/6e05/187e/slideshow/03-coudraie-stage-3.jpg?1661872223 Дата обращения: 02.11.2023
https://images.adsttc.com/media/images/630e/281f/ae0c/1d02/335d/1e2f/slideshow/04-coudraie-elevation-4.jpg?1661872187 Дата обращения: 02.11.2023