В XXI веке темпы развития технологий ускоряются. Инженеры и ученые регулярно презентуют миру нововведения в сфере строительства, которые вдохновляют архитекторов на принятие невообразимых и невозможных ранее художественных решений.
Одной из технологий, повлиявших на облик архитектуры XXI века является компьютерное проектирование. Изобретенное в конце XX века, оно начинает повсеместно применяться в начале нашего столетия.
Bricks Berlin Schoeneberg. GRAFT. 2020
Одним из последствий применения компьютерного проектирования стало более сложное формообразование зданий. Например, появляются гнутые в разных плоскостях кирпичные стены. Создать подобную структуру без использования этой технологии — очень сложная задача. Компьютерная модель же позволяет реализовать самые смелые задумки.
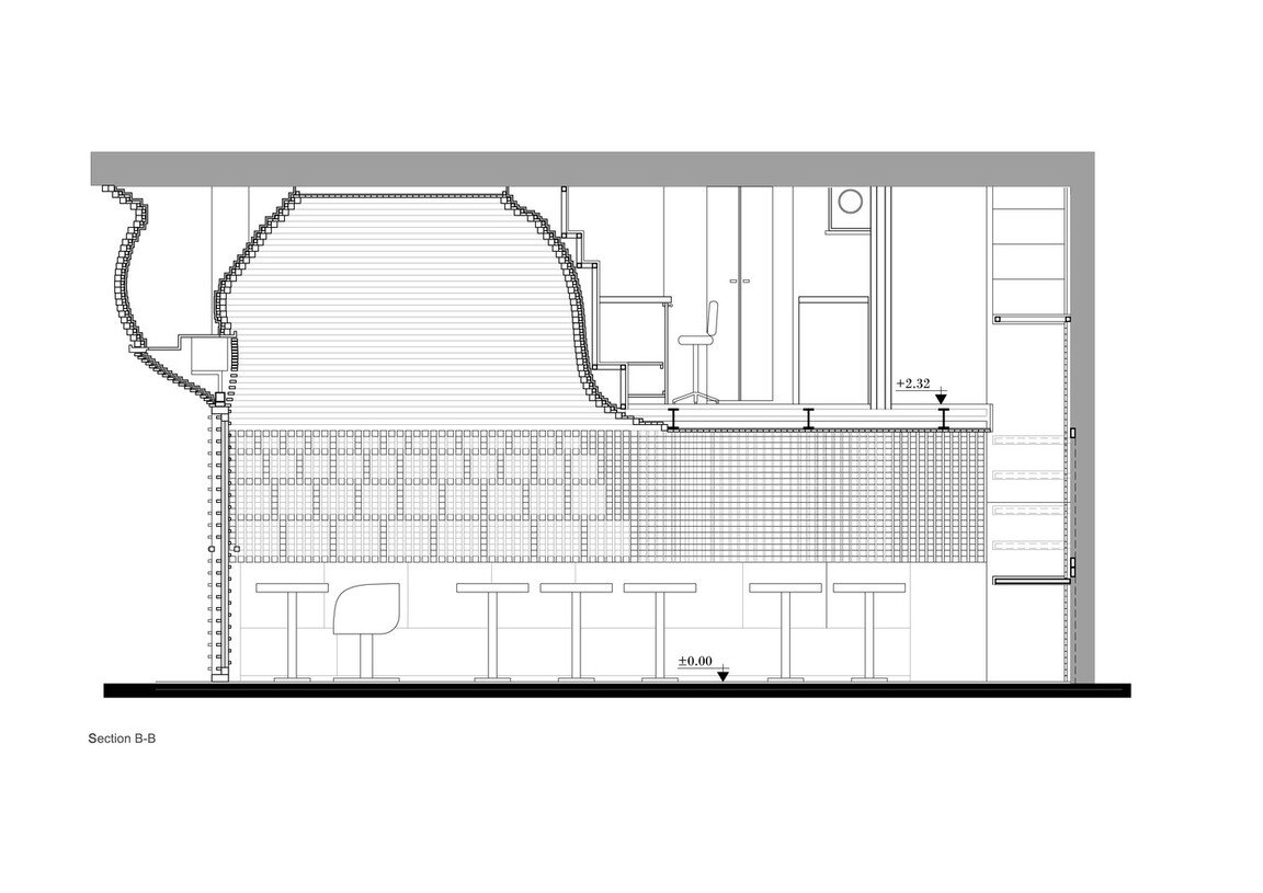
Espriss Café. Hooba Design. 2014
Архитекторы Hoobs Design, используя BIM (Building Information Model — информационная модель здания), создали интегрированную структуру, выполняющую все необходимые функции. Сложная гнутая форма из кирпича выполняет одновременно и роль фасада, и художественного оформления стен и потолка, и даже перекрытия пола помещения для персонала.
Технология BIM-проектирования позволяет создавать 3D-модель здания учитывающую все конструктивные особенности. В дополнение, она привязана к базам данных с информацией о материалах изготовления, их физических свойствах и так далее. Эта технология делает возможным проектирование конструктивно-сложных проектов с меньшими трудозатратами.
Примечательно, что в проектах, спроектированных в компьютерных программах часто присутствут «витые колонны» (авторский перевод терминов «twisting columns» , „twirling vertical stacks» , встречающихся в описаниях проектов)
South Asian Human Rights Documentation Centre. Anagram Architects. 2005
Например, Anagram Architects на создание нестандартной структуры фасада вдохновил именно процесс разработки компьютерной модели. 3D-модель позволила им понять, что простой вращающийся модуль может создать текстурную сложность, необходимую для привлечения внимания к зданию.
Thayer Brick House. Brooks, Scarpa, Studio Dwell Architects. 2010-е
Команда Studio Dwell Architects создает при помощи «витых колонн» из кирпича бриз-соле, позволяющий естественному свету проникать сквозь структуру стены. Ту же функцию выполняют колонны предыдущего проекта.
Twist House. Urban Mesh. 2010-е
«Витые колонны» Twist House выполняют не только декоративную, но и самонесущую функцию. Точность перехода граней колонн в стыки арок таже достигнута благодаря созданию 3D модели.
В начале XXI века архитекторы много экспериментируют с технологиями сборки зданий из кирпича. Создаются новые методы кирпичной кладки и даже альтернативы ей.
Wall House. CTA | Creative Architects. 2018
Стены Wall House сложены противоположным традиционному методу кладки способом: полые кирпичи установлены так, что через отверстия в них может циркулировать свет и воздух. По задумке архитекторов, такое конструктивное решение позволяет создать «дышащий дом». Потребность в циркуляции воздуха обусловлена недавними исследованиями, выяснившими, что качество воздуха внутри помещения хуже, чем снаружи.
Непривычно развернутый кирпич создает необычный эффект, формируя новаторский облик здания.
Espriss Café. Hooba Design. 2014
В здании Espriss Café вместо кладки используется крепление на металлические рамы: в каждом кирпиче сделано отверстие, в него вставляется металлический цилиндр, который, в свою очередь, и крепится к раме. Такой метод сборки конструкции, помимо создания сложной бионической формы, позволяет тем же способом крепить к стене небольшие прямоугольные светильники. Архитекторам удается достигнуть единства всей структуры здания.
Mulberry House. SHoP Architects. 2009
Для создания необычной поверхности фасада Mulberry House были созданы панели из сборного кирпича. Из этих панелей дом строится с меньшими временными затратами, чем при строительстве аналогичного объекта методом классической кирпичной кладки.
Панели позволяют добиться идеальной точности геометричного фасада.
Одной из наиболее впечатляющих инноваций XXI века в кирпичном строительстве является использование роботов.
Роботизированное строительство стало одним из путей закрытия потребности в высококвалифицированных каменщиках и сокращении сроков строительства.
На видео выше Робот-укладчик Hadrian X, способный укладывать 1000 кирпичей за час, в то время как скорость опытного каменщика 300-500 кирпичей в час.
The Programmed Column 2. ETH Zurich. 2010
Роботизированная сборка в сочетании с компьютерным моделированием упрощает процесс создания сложных форм обладающих функционалом несущей конструкции. BIM-модель позволяет точно рассчитать несущую способность того или иного элемента.
Примечательно, что применяя эти технологии, современные архитекторы и инженеры вновь создают «витые колонны».
Выставочный центр в Шанхае. Chi She / Archi-Union Architects. 2016
Главный акцент фасада выставочного центра в Шанхае — выступ на стене напоминающий складку ткани или волну, также создан благодаря роботизированному строительству. Команда архитекторов утверждает, что подобную структуру не возможно было бы создать без робота-помощника [3].
Ещё одно направление развития кирпичного строительства последних десятилетий — эксперименты с материалом, из которого изготовлен кирпичный блок.
Crystal Houses. MVRDV. 2016
Начнём с уже знакомых стеклянных кирпичей. Перед архитекторами представленного выше проекта стояла сложная задача: сохранить традиционный для места облик архитектуры, при это внедрить в фасад прозрачные витрины, необходимые для торговых площадок. Стеклянный кирпич, выполненный в форме традиционного блока, оказался идеальным решением. Для воплощения задумки был специально разработан прозрачный раствор для склейки кирпичей между собой.
Этот проект демонстрирует нестандартную взаимосвязь между художественным ходом и технологией: не архитекторы вдохновляются новыми технологиями, а творческая задумка является отправной точкой для новых разработок.
Hy-Fi. The Living. 2014
Сегодня, тема экологичности строительства — один из вопросов, которыми всё чаще задаются архитекторы при создании проектов. В частности, активно разрабатываются более экологичные варианты строительных материалов.
Башня Hy-Fi построена из органических, биоразлагаемых кирпичей. Блоки буквально выращены из грибов с корнеобразным ростом. По завершении жизненного цикла архитектуры, материал превратится в компост.
В данном случае, материал и технология определяют облик сооружения: природное происхождение блоков, вероятнее всего, вдохновило архитекторов на бионическое формообразование постройки.
Павильон желаний для праздника осени в Гонконге. Daydreamers Design. 2020
Также сегодня всё чаще встречается использование кирпичей из переработанного пластика. Павильон желаний выстроен из кирпичей, произведенный из переработанных бутылок для воды.
Такой кирпич обладает совершенно другой текстурой, отличной от текстуры глиняного кирпича. Это влияет на облик сооружения и ощущение, которое оно производит на человека.
The Grand Mulberry Apartments. Morris Adjmi Architects. 2022
На фоне технологизации процесса производства кирпича и строительства из него вновь становится актуальна ручная формовка кирпичных блоков. Такой метод создания материала воспринимается как художественный прием.
Нестандартные кирпичи для фасада The Grand Mulberry Apartments имеют более 30 вариаций формы, и все были выполнены именно методом ручной формовки. По словам архитектора, это было необходимо для достижения большего сходства с традиционным итальянским фасадом, очертания которого читаются в орнаменте на стенах апартаментов.
Вероятное направление развития кирпичного строительства — использование искусственного интеллекта.
Сгенерированные в Midjourney изображения кирпичной архитектуры. Мохаммад Касим Икбал. 2022
Мохаммад Касим Икбал при помощи искусственного интеллекта создал множество изображений архитектуры из кирпича. На них видно, что сгенерированная ИИ архитектура визуально отличается от спроектированной человеком. При взгляде на эти постройки чувствует совершенно другой метод мышления.
Пока что это только фантазийные проекты, но я уверена, что в скором будущем искусственный интеллект будет активно применяться для создания кирпичной архитектуры.
Выводы
Одной из инноваций, имеющих наибольшее влияние на облик архитектуры XXI века, является компьютерное моделирование. Оно позволило оптимизировать проектирование и строительство архитектуры и вдохновило на множество новых смелых образов, таких как гнутые стены и витые колонны.
Следующим шагом на пути к реализации более сложных конструкций стали роботы-каменщики, позволившие более точно и быстро создавать сложные структуры из кирпича.
Также было разработано много проектов по созданию более экологичных кирпичей, например, из грибов или из переработанного пластика.
Технологией, которая, на мой взгляд, вот-вот перевернёт наше представление о современной кирпичной архитектуре является искусственный интеллект.




