
Уходят от исторического контекста в более практический, а этой главе я провожу сравнительный анализ проектов ревитализации исторических театров с целью сформировать набор универсальных инструментов для применения в ВКР. Выявляются устойчивые подходы к работе со сценическими пространствами, общественными зонами, логистикой и наследием.
В анализе фиксируются типовые исходные проблемы: физический износ и утрата функций, несоответствие современным нормам, неудобная логистика сцены и зрителя, конфликт между историческими слоями и поздними вмешательствами.
Театр «L’Artesà» / Forgas Arquitectes + AMM Arquitectes

Главный вход здания / Forgas Arquitectes + AMM Arquitectes, 2019
Здание было возведено в 1919 году по проекту архитектора Антони Паскуаля-и-Карретеро в центре Прат-де-Льобрегата. В 1988 году закрылось для посетителей ввиду ухудшения состояния и негодности, но бар и сад продолжали функционировать.
Театр рассчитан на 600 зрителей в большом зале и на 150 зрителей в малом.


Видс главного входа и бара / Вид с заднего входа. Пристройка // Forgas Arquitectes + AMM Arquitectes, 2019
Зрительный зал до ревитализации / Стройка
Большой зрительный зал / Forgas Arquitectes + AMM Arquitectes, 2019
Пространство рассчитано на проведение мастер-классов, встреч, репетиций, показов текущих проектов, художественных резиденций, занятий, танцев и различных видов исполнительских искусств — а не только на редкие гастрольные спектакли, после которых театр остаётся пустым на долгие дни.


Интерьеры театра. Forgas Arquitectes + AMM Arquitectes, 2019
Диалог между старым и новым проявляется через тонкий контраст между прежней и современной кирпичной кладкой, а также через различия фактур и оттенков материала.
Генплан / Разрез / Разрез / Виды
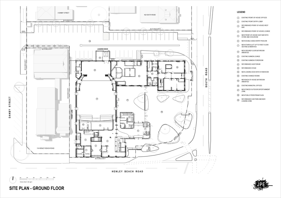
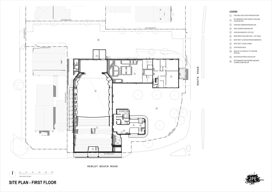
Реконструкция театрального комплекса «Бартон» / JPE Design Studio
Thebarton Theatre Complex / JPE Design Studio, 2025
Здание удалось спасти от сноса в связи с расширением дороги. Перед проектироващиками стояла задача внести необходимые улучшения, сохранив очарование театра.
Заезды и выезды участников мероприятия проводились в существующем юго-восточном углу площадки, где большим грузовикам было неудобно разворачиваться, а также и вручную вкатывать оборудование на сцену по пандусам. В театре был только один главный вход, выходящий на главную дорогу, из-за чего посетители выходили сразу на главную дорогу, рискуя попасть в дорожно-транспортное происшествие. Бар и туалеты, расположенные напротив, также находились очень близко друг к другу, что создавало проблемы с передвижением.
Главный зрительский зал / JPE Design Studio, 2025
Обновленная схема включает в себя перенос главного входа в новый двухэтажный входной павильон с современными санузлами, лифт, новые панели и четкое разграничение санузлов для избежания узких мест, погрузочная зона с гидравлическим подъемником. Старая погрузочная площадка теперь новое место для проведения встреч.


Интерьер кафетерия / JPE Design Studio, 2025
«JPE считает, что лучший способ сохранить историческое наследие — адаптировать его к потребностям современных пользователей.»
Генплан / План 1-го уровня / Разрез / JPE Design Studio, 2025
Ренновация театра Види в Лозанне / PONT12 architectes
Спроектированный Максом Биллом в 1964 году для Национальной выставки, театр в 400 мест изначально был рассчитан всего на шесть месяцев использования. Конструкция была спроектированна модульная система из металла для легкого монтажа и демонтажа. В последтвии государство выкупило здание и организовало на месте мастерскую Милли и хранилища для декораций.
В 1972 году Шарль Апотелоз основал Лозаннский драматический центр во временном здании, ныне известном как Театр Види.
Вид на Двор искусств во время Национальной выставки 1964 года
Сканы страниц из журнала Faces
Театр устарел и требует модернизации, расширения и адаптации под современную сцену.
Зал Шарля Апотело и весь театр с момента постройки не реконструировались, поэтому не соответствуют современным техническим, безопасностным и художественным стандартам. Нет подходящего помещения для репетиций. Реконструкция и расширение нужны, чтобы привести здание к текущим нормам и адаптировать его для полноценной сценической работы.
Vidy Theater / PONT12 architectes, 2023
Интерьер кафетерия/ PONT12 architectes, 2023
Зрительский зал / PONT12 architectes, 2023
Каждое вмешательство обсуждается в диалоге с комиссией по сохранению наследия, например, модификация отремонтированных фасадов, нержавеющая сталь которых, как и изначально, контрастирует с окружающей природой.
Генплан / План 1-го уровня
Более того, в последствии для этого театра был спроектирован дополнительно павильон для проведения спектаклей, концертов, выставок и других общественных мероприятий.
Павильон — прототип новой деревянной конструкции с взаимоблокирующими соединениями «дерево‑дерево». Проект, созданный по технологиям IBOIS, учитывает ограничения площадки, контроль бюджета и сроков, чистый монтаж и устойчивость, развивая принципы Макса Билла.
Театр в Гданьске Вибржеже


Здание театра (Муниципальный театр) до ВМВ, 1936/ Театр после первой реконструкции, 2015
Большая сцена прибрежного театра-модернистское здание, датируемое 1967 годом, которое было построено на участке муниципального театра 1801 года в Гданьске.
Главный вход после и до ренновации / WAPA Warsztat Architektury Pracownia Autorska, 2023
Здание, каким оно выглядит сейчас, построили в начале 1960‑х на руинах довоенного, в историческом центре Гданьска, что породило множество скрытых особенностей. Проект стремился к зрительному залу с отличной видимостью из любого места и превосходной акустикой, со сценой на современной технике: двухэтажные трапы‑лифты, вращаемая секция и большое число осветительных и сценографических планок.
Адаптированная крыша здания/ Спиральная лестница / WAPA Warsztat Architektury Pracownia Autorska, 2023
Концепция строится на контрасте: насыщенное материалами фойе и строгий зал, при общем сдержанном дизайне, отдающем максимум пространства искусству. Показ и мероприятия возможны и на крыше‑террасе с видом на старый город Гданьска


Интерьеры театра / WAPA Warsztat Architektury Pracownia Autorska, 2023
Зрительский зал / WAPA Warsztat Architektury Pracownia Autorska, 2023
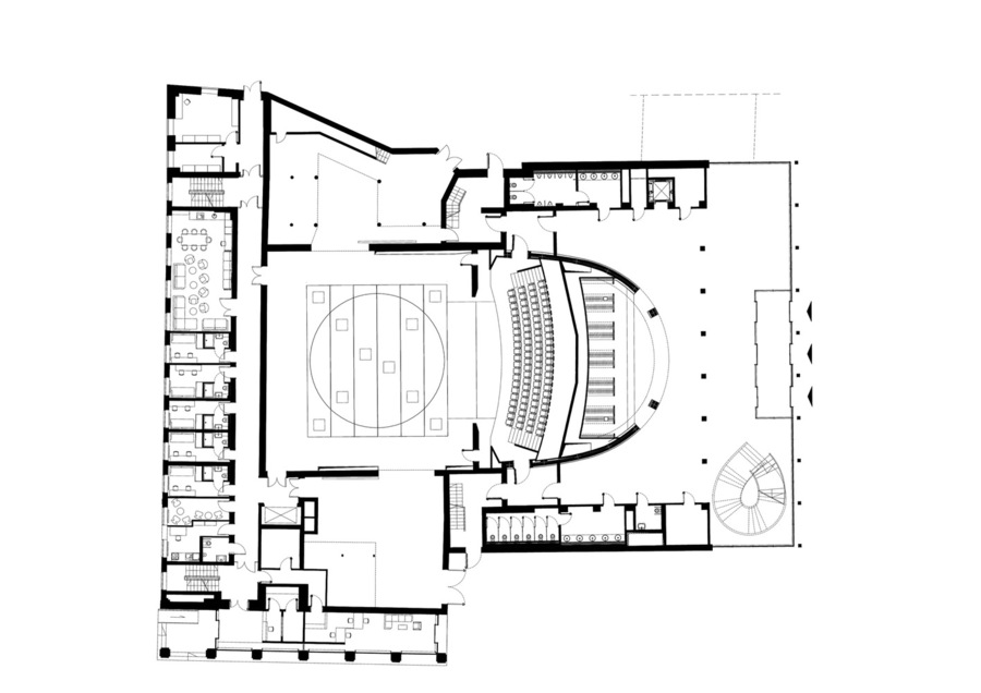
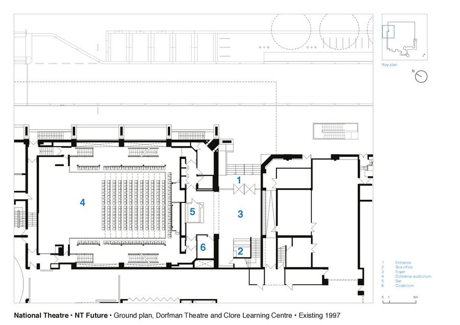
План театра 1-го уровня / План театра 1-го уровня
Национальный театр в Лондоне / Хаворд Томпкинс
Главный вход / Haworth Tompkins, 2015
Здание построенное в 1976 году Денисом Ласдуном нуждалось в адаптации к современному миру и с 2007 года началась подготовка к сохранению.
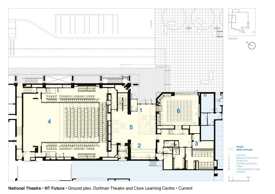
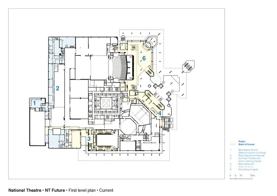
Ключевой момент ренновации — новый горпус Max Rayne Centre, где расположились мастерские, офисы, дизайн студии для освобождения пространства основного здания. Бывший служебный двор превращён в общественное пространство с баром, кафе и входом в ресторан; переработаны главный вход, террасы, ландшафт и фойе.
Национальный театр Лондона / Haworth Tompkins, 2015


Зрительский зал / Интерьер театра / Haworth Tompkins, 2015


Архивные фотографии театра
План 1-го уровня, 1977(до реновации)/2015 // План 1-го уровня зрительских зоны залов, 1977/2015 // План 2-го уровня зрительских зоны залов, 1977/2015 / Haworth Tompkins, 2015
Комплексная модернизация NT Future открыла театр для нового поколения.


Интерьеры / Haworth Tompkins, 2015
Новый вестибюль объединил мастерские и студии; его алюминиевые фасады ведут диалог с брутальной геометрией Ласдуна, а стеклянная стена демонстрирует работу прохожим. Днем вестибюль и часть театра используется в образовательных целях и работы
Главный вход переосмыслен для лучшей связи с набережной и восстановления логики оригинала; в фойе вернули навигацию и отделку, обновили мебель и свет. Совместно с Gross.Max ландшафт стал цельнее: терраса — сад, улучшены навигация и освещение. Получился очень масштабный проект.
Фестивальный театр в Чечестере / Хаворд Томпкинс
Фестивальный театр в Чечестере // Haworth Tompkins, 2014
Haworth Tompkins завершили масштабную реконструкцию Чичестерского фестивального театра — памятника архитектуры, включившую обновление зрительного зала, расширение фойе, благоустройство парка и создание новой задней пристройки.
Театр построенный в 1962 году по инициативе народа и архитекторами Поуэл и Мойя был спроектирован как «павильон в парке», вдохновляясь театром «Фестиваль» в Стратфорде.
Фасад здания / Фойе / Haworth Tompkins, 2014
Архивные фотографии театра / Haworth Tompkins, 2014


Интерьеры театра, Haworth Tompkins, 2014


Интерьер зрительского зала / Haworth Tompkins, 2014
Выразительная консольная бетонная структура и легкая крыша на тросах были смелыми решениями своего времени, но последующие вмешательства с 1970-х годов размыли первоначальную архитектурную идею. Haworth Tompkins демонтировали поздние надстройки, полностью обновили служебные помещения и добавили новую пристройку.
Опорный план (1962) / План 1 уровня (2014) / План 2 уровня (2014) / План 3-го уровня (2014) / План подвала
По итогу анализа, выявляется, что успешная ревитализация строится на балансе идентичности места и актуальных потребностей аудитории: театр становится гибкой культурной инфраструктурой с продуманной логистикой, устойчивой эксплуатацией и ясной навигацией, поддерживающей повседневную жизнь города.